logo
deneme ışıklar

BBMD | Bingöl Barka Mimarlık & Danışmanlık'ın İlk Yapı deneyimi olan SIO Automotive Yeni Üretim Tesisi ve İdari Binası'nda insan odaklı mekânsal düzenlemeleri ön plana çıkaran bir endüstri tesisi yaratılması hedeflenmiş.

Fotoğraflar: BBMD

Fotoğraflar: BBMD

SIO Automotive Yeni Üretim Tesisi ve İdari Binası, firmanın Tekirdağ ili Ergene ilçesinde bulunan mevcut üretim tesisinin yan parselinde yer almaktadır. Endüstri yapılarında öncelikli tasarım ölçütleri olan yapım hızı ve ekonomisinin yanı sıra, firmanın kurumsal kimliğini temsil eden nitelikli bir tesis tanımı işveren adına dile getirilen ilk proje girdileridir. Mevcut tesisin hem idari bölümünde hem de üretim holünde karşılaşılan sorunların tespit edilmesi, firmanın çalışma ve üretim şeklinin analizi tasarım sürecinin ikinci aşamasını oluşturmuştur. 

İdari Bina Gece Görünümü

İdari Bina Gece Görünümü

Kot farkının bulunduğu bir arazide yer alan proje, mevcut tesis ile doğrudan ilişkili olacak şekilde planlanan ve kısmi bodrum katında depo hacimleri olan yeni üretim holü, yönetim birimleri, yemekhane ve servis mekânlarını içeren idari bina ve bir arıtma tesisinden oluşmaktadır. 

Bu tür tesislerde genellikle karşılaşılan çözüm, idari blok ve üretim holünün tek bir prizmatik yapı olarak ele alınması ya da idari bloğun üretim holüne bitiştirilmesi şeklindedir. Her iki çözüm de, idari bloğun planlamasında ve mimarisinde bir dizi sorunlara neden olmaktadır. Özellikle idari bloğun iç hacimlerinin doğal ışık ve doğal hava konusunda maruz kaldığı olumsuzluk bu tür çözümlerde en önemli sorun olarak ön plana çıkmaktadır. 

İdari Bina Genel Görünüm

İdari Bina Genel Görünüm

Bu noktadan hareketle, tesisin tasarım sürecinde idari blok ve üretim holü ilişkisi üzerine odaklanılmıştır. Farklı işlevleri barındıran mekânlar, farklı kütleler olarak yorumlanmış ve mimari, bu farklı kütlelerin ilişkisel kompozisyonuna bağlı olarak kurulmuştur. 

Tesisin üretim holü, yaklaşık 60x156 m boyutlarında ve parseldeki eğimden dolayı batı cephesinde kısmi bodrum katı olan dikdörtgen bir bloktur. Kısmi bodrum kat bitmiş ürün deposu ve sevkiyat, hol bölümü ise üretim ve laboratuvar birimlerini barındırmaktadır. Kısmi bodrum katında radye temel ve yerinde dökme betonarme kolon kiriş sistem kullanılmış, üretim holünde 20x12 m aks aralıklı sistem prefabrik kolon üzerine uzay-çatı sistem ile çözümlenmiştir. Üretim holü cephesinde izolasyonlu yatay sandviç cephe paneli, çatı kaplaması olarak ise yerinde yapım izolasyonlu hafif metal çatı kaplaması üzerinde TPO membran tercih edilmiştir. Üretim holünün doğal ışık ihtiyacı bloğun uzun yönü boyunca mahya bölgesine yerleştirilen ışıklık ve cepheye yakın yan akslarda yer alan noktasal ışıklıklar ile sağlanmıştır. Üretim koşullarından dolayı cephe düzleminde pencere yüzeyleri yer almamaktadır. 

İdari Bina Girişi

İdari Bina Girişi

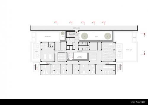
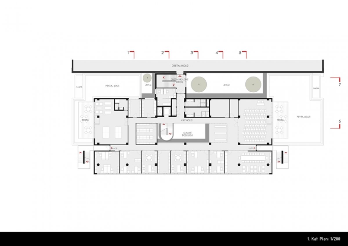
Tesisin ön plana çıkan bölümü ise idari bloktur. Üretim holünden koparılarak çözümlenen bloğun strüktürü betonarme kolon-kiriş sistem ile çözümlenmiştir. Üretim holü ile bağlantı bloğun birinci katından ve tek bir noktadan sağlanmaktadır. Öğelerin ayrıştırılması olarak nitelenebilecek söz konusu tasarım yaklaşımı sürdürülerek, idari bloğun kendi içerisinde yer alan diğer işlevsel farklılıklara da uygulanmıştır. Bir anlamda elemanter bir mimari anlayışla ele alınan idari blok, işlevsel gruplamaya bağlı olarak tanımlanan kütleler ve bu kütlelerin kendi koşullarına bağlı kompozisyonu ile şekillenmiştir. Bloğun mimarisinde önerilen çatı bahçeleri, avlular, çift yönden ışık alan hacimler, çatı ışıklıkları, galeri boşlukları ve seçilen malzemeler ile konforlu açık ve kapalı mekânlar dizisi yaratılması amaçlanmıştır. 

Çatı Bahçesi ve Teras

Çatı Bahçesi ve Teras

Avlu

Avlu

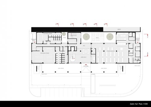
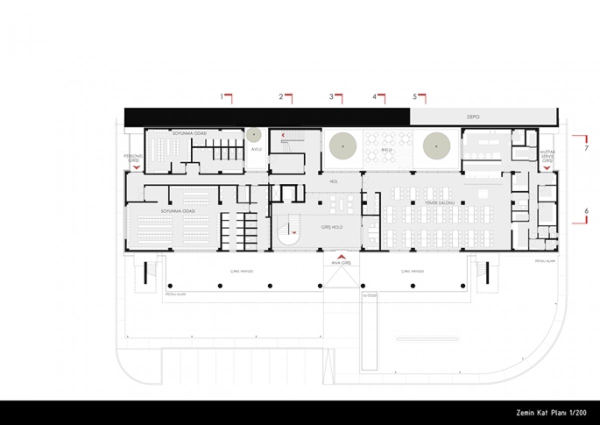
İdari bloğun zemin katında ana giriş holü ile birlikte yemekhane, mutfak, soyunma odaları, ıslak hacimler, personel ve servis girişleri yer almaktadır. Bu kat üretim holüne bitişen bir kaide olarak değerlendirilmiş ve önerilen iki avlu ile bitişmeye bağlı doğal ışık ve hava açısından ortaya çıkacak olumsuzluklar giderilmeye çalışılmıştır. Özellikle suni havalandırma dışında, konfor koşulları açısından doğal havalandırmaya ihtiyaç duyan yemekhane, mutfak ve soyunma hacimleri gibi mekânlar avlular sayesinde bu ihtiyacını giderebilmektedir. Ayrıca büyük avlu yemekhane tarafından kullanılmaktadır. Bir kaide olarak ele alınan bu kütle doğal taş kaplı yüzeyi ile üst katlardan farklılaşmaktadır.  

Ana Merdiven Detayı

Ana Merdiven Detayı

İdari bloğun birinci ve ikinci katlarında ise, ofisler, toplantı salonu, dinlenme salonu ve servis hacimleri bulunmaktadır. Bu iki kat kendi içinde gruplanarak bağımsız bir blok şeklinde değerlendirilmiştir. Bu beyaz blok, kaide olarak nitelenen zemin kat bloğunun üzerinden giriş yönüne doğru kaydırılarak ötelenmiştir. Kütlenin taşıyıcılarının açığa çıkması ile oluşan kolon dizisi, yapının ana girişini vurgulamaktadır. Çalışma hacimlerinin içinde yer aldığı blok, üretim holünden koparılarak dört cephesinden doğal ışık ve hava ile ilişkilendirilmiştir. Birinci kat seviyesinden bir geçit ile üretim holü ile düzayak ilişki kurulmaktadır. Aynı zamanda birinci katta yer alan toplantı salonu ve dinlenme salonundan zemin kat bloğunun çatısında düzenlenen çatı bahçelerine erişilmektedir.

İdari Bina Galeri Boşluğu ve Çatı Işıklığı

İdari Bina Galeri Boşluğu ve Çatı Işıklığı

İdari blokta tüm katlar birbirleri ile içerisinde döşemeden konsol olarak çalışan merdivenin yer aldığı, üst kata doğru bir yönde genişleyen, üzeri geniş bir çatı ışıklığı ile kapatılmış galeri boşluğu ile ilişki kurmaktadır. Masif şekilde yorumlanan konsol merdivenin boşluğun içerisinde plastik bir öğe olarak ayrışması öngörülmüştür. Boşluğa ve merdivene düşeyde eşlik eden tek sağır duvar düzlemi, akustik ahşap paneller ile kaplanarak boşluk içerisinde olası yankının engellenmesi ve iç mekânda sıcak bir atmosfer oluşturulması hedeflenmiştir. Çatı ışıklığının altında düzenlenen derin kirişlemeler ile doğal ışığın iç mekâna kontrollü olarak alınması sağlanmış ve yapının ortak hacimlerinde günün farklı saatlerinde farklı ışık-gölge etkileri elde edilmiştir. Yapı, genel kütle kompozisyonu, avluları, galeri boşluğu ve çatı ışıklığı ile doğal ışık, doğal havanın yanı sıra kullanıcılarının da birbirleri ile yatayda ve düşeyde güçlü ilişkiler kurabildiği bir karaktere sahiptir. 

Cephe Detayı

Cephe Detayı

Endüstri yapıları tasarımında yapım hızı, yapım ekonomisi, kurum imajı, esneklik gibi temel baskın tasarım ölçütleri söz konusudur. SIO Automotive Yeni Üretim Tesisi ve İdari Binası projesinde, bu ölçütlere ek olarak, özellikle enerji etkin tasarım ilkelerinin, teknolojik donanıma başvurulmadan önce, planlamanın temel özelliklerinin dikkate alındığı bir tasarım süreci ile hayata geçirilmesi ve insan odaklı mekânsal düzenlemeleri ön plana çıkaran bir endüstri tesisi yaratılması hedeflenmiştir. Bu sayede öncelikle planlamadan faydalanarak hem aydınlatma, havalandırma, soğutma için ihtiyaç duyulacak enerji tüketiminin, projede öngörüldüğü şekilde doğal imkânlardan azami ölçüde faydalanılarak en aza indirilmesi mümkün olacak, hem de basit mekânsal düzenlemeler ve malzeme seçimleri ile tesisin tüm çalışanlarının konforlu açık ve kapalı mekânlarda çalışma saatlerini geçirmeleri sağlanabilecektir.

Yerleşim Planı ve Siluet Çizimi

Yerleşim Planı ve Siluet Çizimi

Yorum Yazın

Yorumlar


Geniş Yeşil
Yukarı